- Apr 22: EXTENDED to 22 Apr;Closure:30 Mar-22 Apr 2026; 07:30-17:00; Clearway Parking Zone; Hatchs Hill, Steamers Hill and Angarrack Lane (6 days)
- Apr 24: Mobile Library | Friday 24 Apr 2026 (8 days)
- May 22: Mobile Library | Friday 22 May 2026 (36 days)
- Jun 19: Mobile Library | Friday 19 Jun 2026 (64 days)
180221 | PA18/00895 | Rear extension | The Angarrack Inn 12 Steamers Hill Angarrack TR27 5JB
Submitted by via Cornwall Co... on Thu, 15/03/2018 - 16:40.
PA18/00895 | Rear extension | The Angarrack Inn 12 Steamers Hill Angarrack TR27 5JB
| Reference | PA18/00895 |
|---|---|
| Alternative Reference | PP-06699022 |
| Application Validated | Wed 21 Feb 2018 |
| Address | The Angarrack Inn 12 Steamers Hill Angarrack TR27 5JB |
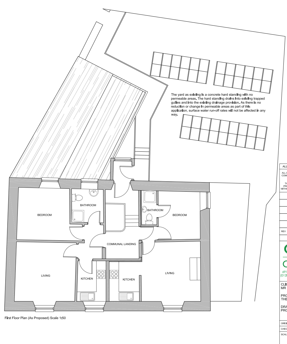
| Proposal | Rear extension |
| Status | Awaiting decision |
| Appeal Status | Unknown |
| Appeal Decision |
There are 3 documents associated with this application.
There is 1 case associated with this application.
There is 1 property associated with this application.
| | Date Published | Document Type | Measure | Drawing Number | Description | View |
|---|---|---|---|---|---|---|
| 12 Feb 2018 | Plan - Existing Mixed | | GS077-01 | EMAIL WITH AMENDED PLANS | | |
| 12 Feb 2018 | Plan - Proposed Mixed | | GS077-02 | FLOORS AND ELEVATIONS | | |
| 27 Jan 2018 | Application Form | | APPLICATIONFORMNOPERSONALDATA | |
Planning Applications (10)
- Replacement of 2 external lights
- Formation of safe means of escape for existing first floor residential accommodation including construction of external staircase. Conversion of first floor apartment to form two apartments
- Listed Building Consent: Formation of safe means of escape for existing first floor residential accommodation including construction of external staircase. Conversion of first floor apartment to form two apartments
- Formation of safe means of escape for existing first floor residential accommodation including construction of external staircase. Conversion of first floor apartment to form two apartments
- Listed Building Consent for the formation of safe means of escape for existing first floor residential accommodation including construction of external staircase. Conversion of first floor apartment to form two apartments
- Rear extension
- Listed Building Consent: Rear extension
- Construction of toilet extension Head No(s): 07484
- Glazed porch to front of public house Head No(s): 07484
- Erection of toilets Head No(s): 07484
- Printer-friendly version
- Login or register to post comments
- Permalink
Contributions
- Angarrack Defibrillator Team (25)
- Angarrack Inn (336)
- Angarrack Methodist Chapel (3)
- Carol (15)
- Gail (1)
- GordonG (12)
- Hayle Development Group on Facebook (5)
- Hayle Harbour Authority (4)
- Hayle Town Council (5)
- louise (1)
- Lynne (111)
- Mal (1)
- MattBuckley66 (9)
- Neil (22)
- Neils Garden Care (9)
- Russell (21)
- Secretary - Christmas Lights (141)
- Steve (3)
- webmaster (5122)
Book page
Facebook - Angarrack Inn
- We are looking forward to celebrating our first year anniversary running the Ang...
- Getting ready for Sunday roast , it's smells really good ! :)
- Pub quiz tonight !! Come on join us !! :)
- Happy Birthday again Mrs Joan Cook ! It has been a brilliant night ! #buffet #lo...
- Quizmaster Kenny has nearly picked his own brain out writing tonight's quiz! Com...
- Thank you so much guys for your support ! Travellers Award the 2015 Certificate...
- Our opening hours 7 days a week come on join us ! ^_^
- <a href="/671881132899709/photos/a
- Book your table now ! :) It's Curry Night on Thursday at the Angarrack Inn ! 3 C...
- Don't forget you can take away fish and chips on a Friday night !! :)
Similar
- Planning 2018 | Angarrack
- Angarrack Inn — at Angarrack Inn #snowday ❄️❄️❄️❄️
- PA17/11490 | Listed building consent application for repair of existing original sash windows, front door, side and rear doors a
- PA18/00269 | Non-material amendment to approval PA17/06782. Proposed increase in finished ridge height and ground floor level by
- PA17/10265 | Listed building consent to replace existing plastic gutters and down pipes with aluminium seamless ones. - 15 Stea
Similar across site
- 180221 | PA18/00895 | Rear extension | The Angarrack Inn 12 Steamers Hill Angarrack TR27 5JB
- Planning 2018 | Angarrack
- Angarrack Inn — at Angarrack Inn #snowday ❄️❄️❄️❄️
- PA17/11490 | Listed building consent application for repair of existing original sash windows, front door, side and rear doors a
- PA18/00269 | Non-material amendment to approval PA17/06782. Proposed increase in finished ridge height and ground floor level by



















Recent comments
11 weeks 19 hours ago
16 weeks 20 hours ago
16 weeks 20 hours ago
31 weeks 18 hours ago
50 weeks 4 days ago
50 weeks 4 days ago
50 weeks 4 days ago
50 weeks 4 days ago
1 year 20 weeks ago
1 year 34 weeks ago